535 000,00 PLN (4 723,64 PLN)

Pole oraz las | Cisza | Spokój| Gotowe

Dom (Segment środkowy) na sprzedaż,
Kaźmierz

Kontakt z agentem: Poznańscy Doradcy Nieruchomości
Opis nieruchomości

3 sypialnie
Działka 254 mkw
Garaż


Dom, który od pierwszego wejścia mówi: „To tu. To nasz.”

Wyobraź sobie poranki na własnym tarasie, popołudniowy spokój po pracy i wieczory, które wreszcie należą do Was. W miejscu, które daje przestrzeń, prywatność i komfort.
Ten dom to idealna propozycja dla młodej pary lub rodziny, która chce zacząć nowy etap życia w nowoczesnym, gotowym do odbioru miejscu.

Wyjątkowa okazja, która nie zdarza się często.

Nowoczesny dom blisko natury i miasta

113,26 m² funkcjonalnej przestrzeni, 254 m² działki i ogród około 100 m² — stworzony z myślą o osobach, które chcą żyć wygodnie, blisko natury, ale jednocześnie z szybkim dojazdem do Poznania.

Poznaj ten wyjątkowy lokal


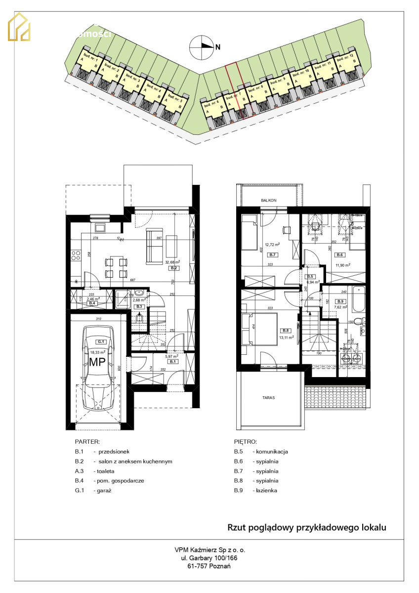
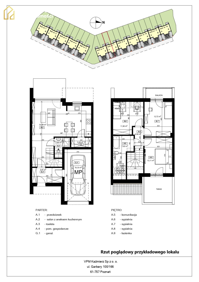
  • Parter - 66,30 m²


Salon z aneksem kuchennym 36,47 m²
Wyjście na ogród o powierzchni około 100 m²
Spiżarnia 2,52 m²
Łazienka z miejscem na prysznic 2,93 m²
Korytarz 5,99 m²
Garaż 18,39 m² z wejściem bezpośrednio do domu


  • Piętro - 46,96 m²


Sypialnia 10,56 m²
Sypialnia 12,84 m² z balkonem
Sypialnia 13,19 m² z tarasem
Duża łazienka z miejscem na wannę 7,76 m²
Korytarz 2,61 m²

To układ idealny dla młodej pary: miejsce do pracy zdalnej, sypialnia, przestrzeń na garderobę lub przyszły pokój dziecka.

Dlaczego to właśnie ten dom?

1. Jedyny dostępny w obniżonej cenie 499 000 zł.
2. Gotowy do odbioru - bez zbędnego czekania.
3. Ogrzewanie podłogowe w całym domu - komfort i oszczędność.
4. Nowoczesne okna trzyszybowe z przygotowaniem pod rolety elektryczne.
5. Brama garażowa z napędem, drzwi antywłamaniowe.
6.Taras i podjazd z kostki brukowej.
7. Ogrodzenie panelowe.
8. Wszystkie instalacje wykonane: wodociąg, piec gazowy dwufunkcyjny, ogrzewanie podłogowe, kanalizacja (zbiornik 8 m³).

To dom, który można urządzić całkowicie według własnego stylu - bez dopłacania za cudze wykończenia.

Lokalizacja, która daje codzienny komfort

Kaźmierz, ul. Grabowa - zielona, spokojna okolica z pełną infrastrukturą.


  • 8 km od Tarnowa Podgórnego

  • 21,6 km od Poznania

  • 9,6 km od Szamotuł



W pobliżu:
Sklepy (Biedronka, Dino, Żabka, Rossmann, Pepco), przedszkola, żłobek, szkoła podstawowa, restauracje, targ.
Blisko tereny spacerowe, zalew Radzyny, ścieżki rowerowe oraz staw wędkarski.
Komunikacja: autobus 813 w stronę Poznania przez Tarnowo Podgórne.

Dojazdy:


  • Poznań (Ogrody) - 30 min

  • Szamotuły - 20 min

  • Rokietnica - 18 min

  • Tarnowo Podgórne - 15 min



To lokalizacja, która łączy wygodę życia poza miastem z szybkim dostępem do jego możliwości.

Skontaktuj się z nami: 571 099 235
Już dziś zamieszkaj w spokojnej okolicy z szybkim dojazdem do Poznania. 

Umów się na prezentację i dowiedz się jaki RABAT możesz uzyskać. Oferta ograniczona czasowo oraz ilościowo!

FILM: https://youtu.be/sDvko2lOat0

*Niniejsza oferta ma charakter poglądowy nie jest ofertą w rozumieniu kc, a jej parametry mogą zostać zmienione.
* www.vpm.pl

Film o nieruchomości
Plany Nieruchomości
Mapa
Kontakt z agentem

Poznańscy Doradcy Nieruchomości

Iga Wojtczak
Nieprawidłowy adres E-mail

Strona korzysta z plików cookie w celu realizacji usług zgodnie z Polityką prywatności. Możesz określić warunki przechowywania lub dostępu do cookie w Twojej przeglądarce.