535 000,00 PLN (4 749,64 PLN)

Ogród| Taras |Balkon |Garaż |Spiżarnia

Dom (Segment środkowy) na sprzedaż,
Kaźmierz, Grabowa

Kontakt z agentem: Poznańscy Doradcy Nieruchomości
Opis nieruchomości

********SPRZEDAŻ BEZPOŚREDNIA PROSTO OD DEWELOPERA******

Szukasz inwestycji blisko natury? Z widokiem na pola i lasy?
Wyjątkowa Inwestycja w Kaźmierzu - Twoje Miejsce Spokoju i Komfortu

Zamieszkaj w miejscu, gdzie nowoczesność harmonijnie łączy się z naturą! Osiedle przy ul. Grabowej oraz Platanowej w Kaźmierzu to doskonała propozycja dla rodzin i osób ceniących przestrzeń, wygodę oraz wyjątkową lokalizację w otoczeniu zieleni.

Cisza, spokój, odpoczynek....
Przedstawiamy II etap inwestycji dewelopera VPM Development. To ostatnia szansa, aby zamieszkać w jednym z dostępnych lokali w tej niezwykłej okolicy!

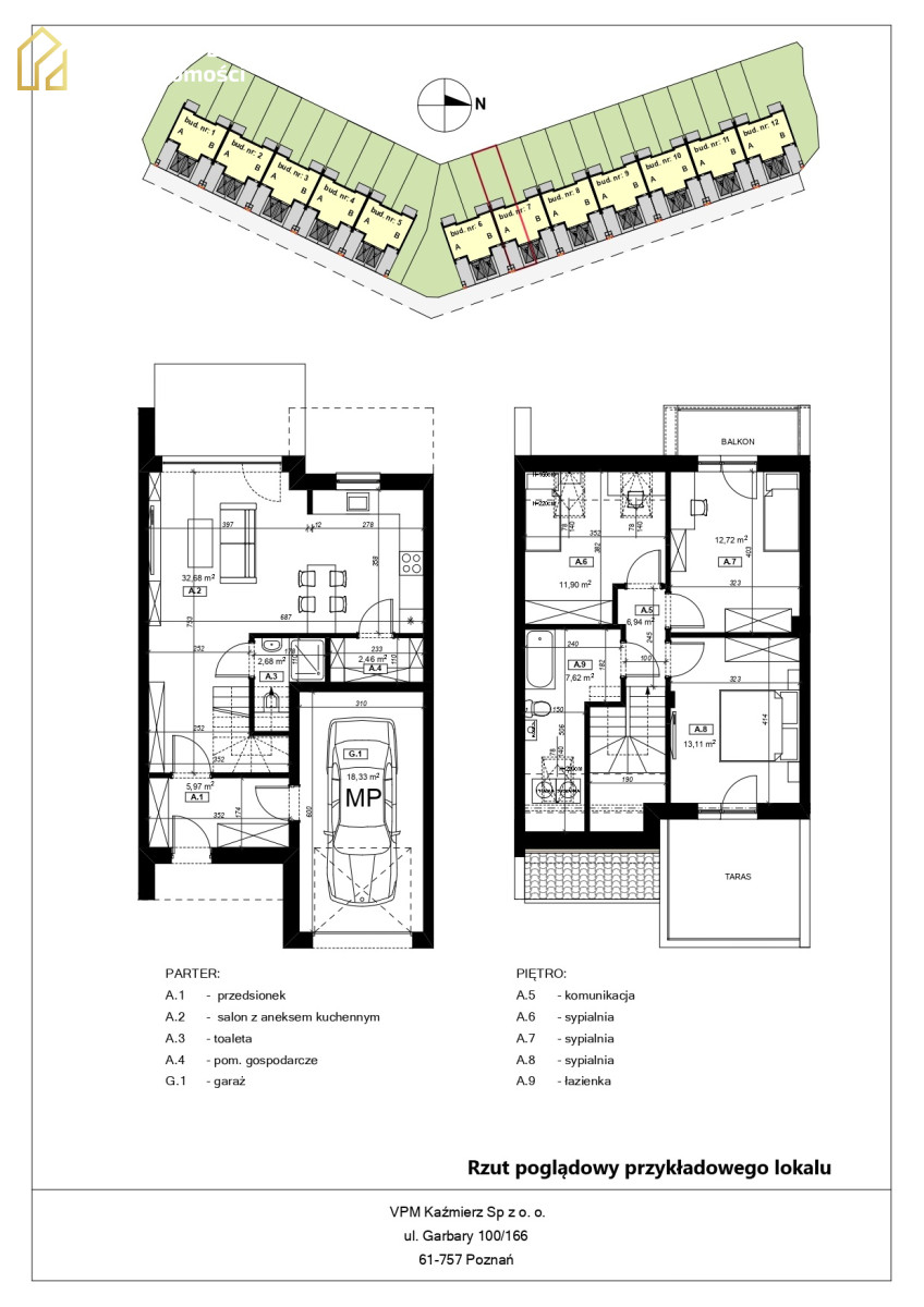
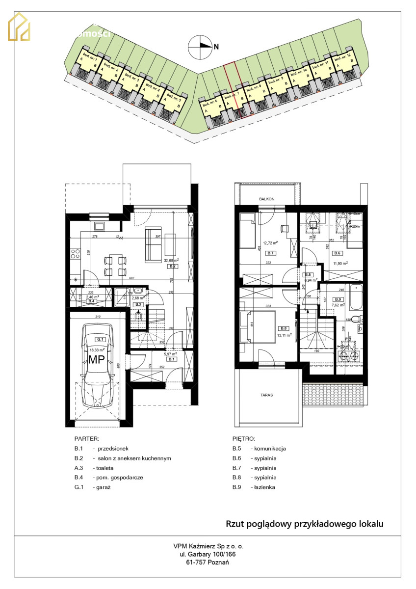
Powierzchnia użytkowa domu: 112,64 m²
Powierzchnia działki: 254 m²
Cena: 535 000 zł

Każdy dom posiada przynależny ogród z tarasem - idealne miejsce na relaks i spotkania z bliskimi.

Przemyślany Układ Pomieszczeń


Parter (65,76 m²):



  • Przestronny salon z aneksem kuchennym (36,11 m²) z wyjściem na taras i ogród

  • Funkcjonalna spiżarnia (2,45 m²)

  • Łazienka z prysznicem (2,92 m²)

  • Korytarz (5,92 m²)


Garaż (18,36 m²) z bezpośrednim dostępem do domu i miejscem postojowym przed budynkiem

Piętro (46,88 m²):


  • Sypialnia 1 (10,52 m²)

  • Sypialnia 2 (12,87 m²) z balkonem - idealne miejsce na poranną kawę

  • Sypialnia 3 (13,16 m²) z tarasem - Twoja prywatna oaza spokoju

  • Przestronna łazienka (7,75 m²) z miejscem na wannę

  • Korytarz (2,58 m²)


Standard Wykończenia - Deweloperski


  • Ogrzewanie podłogowe w całym domu.

  • Okna trzyszybowe PCV z puszkami na rolety elektryczne

  • Drzwi antywłamaniowe, metalowe, dwuzamkowe

  • Brama garażowa z napędem elektrycznym

  • Tarasy i balkony z solidnymi balustradami

  • Kostka brukowa na podjazdach

  • Ogrodzenie panelowe dla pełnej prywatności


Wyjątkowa Lokalizacja
Osiedle położone w spokojnej miejscowości z dogodnym dojazdem do:


  • Poznania (30 minut)

  • Szamotuł (20 minut)

  • Tarnowa Podgórnego (15 minut)


W pobliżu:
Sklepy: Biedronka, Dino, Żabka, Rossmann, Pepco
Placówki edukacyjne: przedszkola, szkoła podstawowa, żłobek
Staw wędkarski, Zalew Radzyny, ścieżki spacerowe i rowerowe

Dlaczego Warto?
Brak prowizji i podatku PCC - zakup bezpośrednio od dewelopera
Pomoc w uzyskaniu kredytu - nasi eksperci finansowi są do Twojej dyspozycji

Zamieszkaj Już Dziś!
Nie zwlekaj! Ostatnie lokale czekają na nowych właścicieli. 
Kaźmierz - blisko natury, blisko miasta. Idealne dla Ciebie!

FAKTURA VAT, RĘKOJMIA, ELASTYCZNY TERMIN REZERWACJI
BRAK PCC I PROWIZJI

FILM: https://youtu.be/sDvko2lOat0 

Umów się na prezentację i dowiedz się jaki RABAT możesz uzyskać. Oferta ograniczona czasowo oraz ilościowo!

*Oferta ma charakter poglądowy, nie stanowi oferty handlowej w rozumieniu odpowiednich przepisów a jej parametry mogą zostać zmienione.
* www.vpm.pl 

Film o nieruchomości
Plany Nieruchomości
Mapa
Kontakt z agentem

Poznańscy Doradcy Nieruchomości

Iga Wojtczak
Nieprawidłowy adres E-mail

Strona korzysta z plików cookie w celu realizacji usług zgodnie z Polityką prywatności. Możesz określić warunki przechowywania lub dostępu do cookie w Twojej przeglądarce.