Nowoczesny dom bliźniak z pompą ciepła, ogrodem i roletami zewnętrznymi - komfort i oszczędność.
Dodatkowo wyprowadzona instalacja na dach pod fotowoltaikę i rozprowadzona została także instalacja alarmowa.
Na sprzedaż nowoczesny dom bliźniak o funkcjonalnym układzie, położony w spokojnej okolicy z łatwym dostępem do komunikacji miejskiej. Idealna propozycja dla rodzin ceniących wygodę i nowoczesne rozwiązania.
Bliźniak budowany był przez właścicieli "dla siebie" więc wykonany jest z bardzo dobrych materiałów.
Powierzchnia i układ pomieszczeń:
- 3 przestronne sypialnie (jedna z garderobą)
- Jasny salon połączony z kuchnią - przestronna i funkcjonalna strefa dzienna
- 2 łazienki - wygoda dla całej rodziny
- Ogród - idealne miejsce do relaksu i spędzania czasu na świeżym powietrzu
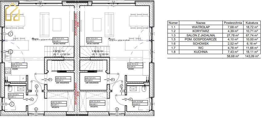
Na powierzchnię całego domu składają się:
PARTER:
wiatrołap 7,68
pomieszczenie gospodarcze 4,10
łazienka z oknem 4,78
salon z jadalnią27,78
kuchnia 7,43
1.PIĘTRO:
Pokój 1: 11,78
Pokój 2: 11,59
Pokój 3: 15,78
Garderoba: 4,19
Łazienka: 6,31
Korytarz: 9,01
**Nowoczesne i energooszczędne rozwiązania**
Dom wyposażony jest w pompę ciepła, zapewniającą ekologiczne ogrzewanie i niskie koszty eksploatacji. Dodatkowym atutem są **rolety zewnętrzne**, zwiększające komfort termiczny i bezpieczeństwo.
**Doskonała lokalizacja**
Dom znajduje się w pobliżu komunikacji miejskiej, co zapewnia szybki i wygodny dojazd do centrum miasta oraz innych ważnych punktów.
UWAGA! istnieje możliwość dokupienia działki sąsiadującej i tym samym można powiększyć sobie działkę, ogród bliźniaka o ok 550m 2.
*więcej informacji bezpośrednio
**Dodatkowe atuty:**
✅ Wysoka jakość wykończenia
✅ Nowoczesny design i funkcjonalny układ
✅ Dobrze doświetlone wnętrza
✅ Możliwość indywidualnej aranżacji
Zapraszam do kontaktu i umówienia się na prezentację!
OFERTA DOTYCZY LEWEJ CZĘŚCI ( LEWA POŁÓWKA ) . DOSTĘPNA RÓWNIEŻ PRAWA POŁOWA W CENIE 944.000ZŁ ( DZIAŁKA 267MKW)
** niniejsza oferta m charakter poglądowy i nie stanowi oferty handlowej w rozumieniu odpowiednich przepisów, w tym kc.
885 000,00 PLN (7 542,83 PLN)
OKAZJA GOTOWY BLIŹNIAK W POZNANIU Z POMPĄ CIEPŁA
Dom (Bliźniak) na sprzedaż,
Poznań, Wołowska
Dane szczegółowe
- Typ transakcji: sprzedaż
- Typ nieruchomości: Dom
- Lokalizacja: Poznań Junikowo, Wołowska
- Powierzchnia:117,33 m2
- Liczba pokoi: 4
- Rok budowy: 2024
- Liczba pięter: 1
-
Powierzchnia działki:
227 m2
- Numer oferty: 453051
- Cena: 885 000,00 PLN
- Cena za m2: 7 542,83 PLN
Kontakt z agentem: Poznańscy Doradcy Nieruchomości
Iwona Borys
Opis nieruchomości
Mapa
Kontakt z agentem
Poznańscy Doradcy Nieruchomości