719 000,00 PLN (6 429,98 PLN)

Promocja na wakacje! Osiedle Przyjazna

Mieszkanie na sprzedaż,
Poznań

Kontakt z agentem: Poznańscy Doradcy Nieruchomości
Opis nieruchomości

**Nowa inwestycja na Szczepankowie - Inwestycja Przyjazna Poznań ** 

Zapraszamy do zapoznania się z naszą nową inwestycją - kameralnym osiedlem 32 lokali w zabudowie szeregowej, zlokalizowanym w jednej z najbardziej pożądanych dzielnic Poznania - na Szczepankowie.

Każdy z domów zaprojektowano z myślą o komforcie codziennego życia i funkcjonalności.
Dwukondygnacyjne lokale składają się z:
na parterze salonu z otwartą kuchnią i miejscem na jadalnię wc i wiatrołapu. Z trzech niezależnych sypialni na piętrze i łazienki. Do lokalu przynależy ogródek dający przestrzeń do relaksu na świeżym powietrzu.

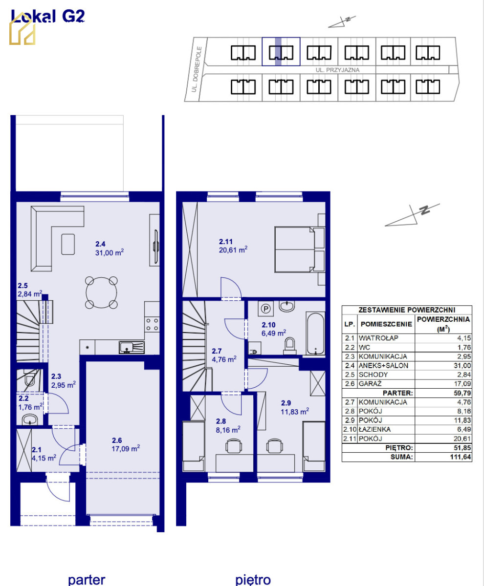
Ogłoszenie dotyczy lokalu G2 (lokal środkowy z garażem)  

Układ pomieszczeń:
PARTER:
- wiatrołap - 4,15mkw
-komunikacja -2,95mkw
-wc - 1,76mkw
-salon z aneksem kuchennym - 31mkw
schody - 2,84mkw
garaż - 17,09mkw

PIĘTRO:
- komunikacja - 4,75mkw
- pokój - 8,16mkw
- łazienka - 6,49mkw
- pokój - 11,83mkw
-pokój 20,,61 mkw

Do lokalu przynależy ogródek o pow. ok. 43mkw ( pow. przynależnej działki ok. 162mkw) oraz miejsce postojowe. 

Domy oddawane są w standardzie deweloperskim, co daje możliwość indywidualnej aranżacji wnętrz według własnych potrzeb i gustu. 
Ogrzewanie gazowe (podłogowe), rolety zewnętrzne, pełne media, indywidualne liczniki. 
Inwestycja w trakcie budowy. Termin zakończenia budowy I etapu - I kwartał 2026r 
Wpłaty zgodnie s postępem prac na budowie na indywidualny rachunek powierniczy, umowa deweloperska. 

I etap inwestycji to 32 lokale, które  tworzą przyjazne, spokojne osiedle, idealne dla rodzin, osób ceniących spokój i komfort życia z dala od miejskiego zgiełku, a jednocześnie z doskonałym dostępem do infrastruktury Poznania.

Szczepankowo to dzielnica łącząca uroki zielonych przedmieść z bliskością centrum miasta. W pobliżu znajdują się szkoły, sklepy, tereny rekreacyjne oraz wygodny dojazd do głównych arterii komunikacyjnych.

** w ofercie dostępne również pozostałe lokale
** zakup bezpośrednio od dewelopera  ( umowa deweloperska) 
** brak PCC i dodatkowych kosztów,
** faktura VAT,
** rękojmia. 
** elastyczny czas rezerwacji 

ZAPRASZAMY DO KONTAKTU - BIURO SPRZEDAŻY - POZNAŃSCY DORADCY NIERUCHOMOŚCI. 

https://przyjazna.przyjazneinwestycje.pl/ 

niniejsza oferta ma charakter poglądowy, nie jest ofertą handlową w myśl odpowiednich przepisów w tym kc, a jej parametry w tym cena mogą zostać zmienione. 

Plan Nieruchomości
Mapa
Kontakt z agentem

Poznańscy Doradcy Nieruchomości

Joanna Dubaniowska
Nieprawidłowy adres E-mail

Strona korzysta z plików cookie w celu realizacji usług zgodnie z Polityką prywatności. Możesz określić warunki przechowywania lub dostępu do cookie w Twojej przeglądarce.